
سیستم دیوار پنجره Rexi دارای عایق حرارتی بهتر و عملکرد صرفه جویی در انرژی در مقایسه با دیواره پرده معمولی است که همه اینها به این دلیل است که سیستم دیوار پنجره بسیار بالاتر از دیوار پرده معمولی نسبت پنجره دیوار است که اشاره به نسبت مساحت کل ویندوز خارجی در یک جهت به مساحت کل دیوارهای خارجی در همان جهت دارد.
با گرم شدن کره زمین، مصرف انرژی ساختمان یک علت مهم گرم شدن آب و هوا است، بنابراین چگونگی طراحی صرفه جویی در انرژی ساختمان به یک اقدامات بسیار مهم صرفه جویی در انرژی و کاهش انتشار تبدیل خواهد شد، چین ساختمان پنجره سیستم دیوار معرفی شده در این مقاله راه حل خوبی خواهد بود.
در شرایط مشابه، سیستم دیوار پنجره Rexi دارای عایق حرارتی بهتر و عملکرد صرفه جویی در انرژی در مقایسه با دیوار پرده معمولی است، که همه اینها به این دلیل است که سیستم دیوار پنجره بسیار بالاتر از نسبت دیوار پرده معمولی پنجره دیوار است که اشاره به نسبت مساحت کل ویندوز خارجی در یک جهت به مساحت کل دیوارهای خارجی در یک جهت دارد.
از آنجا که تفاوت سیستم ، نسبت به سیستم دیوار پنجره شیشه ای استاندارد بیشتر Rexi ساختمان منطقه دیوار خارجی ، و ساخت و ساز از دیوار خارجی عملکرد عایق حرارتی بهتر از کسانی که از هر نوع ویندوز و درب دیوار پرده که نشت بیرونی ساختمان دیوار بیرونی با مواد عایق حرارتی ، حفظ حرارت و عایق حرارت می تواند تا حد زیادی بهبود عملکرد کلی ، به طوری که برای رسیدن به اثر صرفه جویی در انرژی.

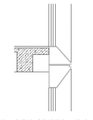
سیستم دیوار پرده معمولی پنجره سیستم دیوار
از شکل فوق به وضوح می توان دید که با توجه به روش های مختلف نصب، سیستم دیوار پنجره در داخل ساختمان اصلی نصب می شود، و دیوار اصلی ساختمان در بیرون در معرض دید قرار می گیرد. این بخش از دیوار را می توان با عایق حرارتی پشم سنگ نصب, به طوری که برای رسیدن به عملکرد عایق حرارتی.
در عین حال، سیستم پنجره و دیواره Rexi را می توان آزادانه با پیکربندی شیشه ای انتخاب کرد و مدل آلومینیوم پل شکسته، با استفاده از شیشه سه شیشه ای دو حفره ای LOW-E، می تواند عملکرد عایق حرارتی را بهبود بخشد، از پهنای گسترده تر پروفایل های آلومینیومی استفاده می شود و ماده عایق اضافه می شود تا از دست دادن گرما از داخل ساختمان کاهش یابد و ورود اختلاف دما از خارج از ساختمان کاهش یابد. ,به طوری که داخلی ساختمان برای رسیدن به اثر گرم در زمستان و خنک در تابستان.


تگ های محبوب: عملکرد پنجره دیوار سیستم ، چین ، تامین کنندگان ، تولید کنندگان ، کارخانه ، قیمت





